Lokalizacja: Marczów
Rok: 2020/2021
Autorzy: arch. Bartłomiej Święs, arch. Dagmara Żelazny, arch. Katarzyna Dunat
Projekt domu jednorodzinnego zlokalizowany jest we wsi Marczów – miejscowości której intensywny rozwój nastąpił w początkach XIX wieku. We wsi można podziwiać liczne przykłady architektury łużyckiej oraz zabytki z XVIII i początku XIX wieku.
Otoczenie i okoliczna architektura stały się inspiracją do stworzenia projektu domu, nawiązującego do tradycyjnej architektury regionu, jak i do jej urbanistyki.
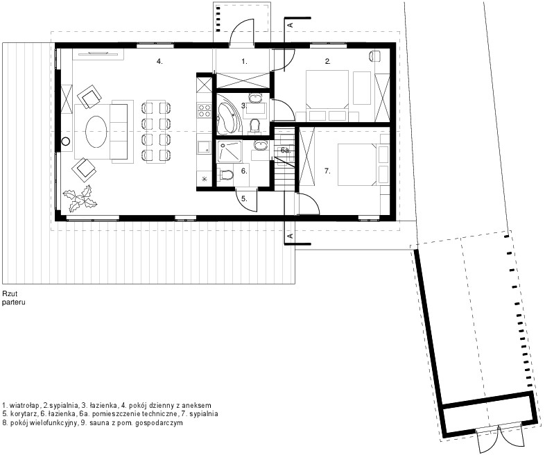
Prosty układ funkcjonalny domu, koresponduje z prostą bryłą budynku oraz wpisuje się w kontekst terenowy działki. Projekt zakłada lokalizację wszystkich powierzchni mieszkalnych na parterze, zostawiając częściowo wydzielone poddasze jako przestrzeń dodatkową i przeznaczoną na pomieszczenie gospodarcze. Pokój dzienny z aneksem kuchennym – wysoki na dwie kondygnacje, usytuowany jest w części budynku otwartej na południową i zachodnią stronę świata, co zapewnia spory dostęp światła dziennego i wrażenie dużej przestrzeni. Dwie sypialnie zlokalizowane są we wschodniej części budynku, z czego jedna ma bezpośredni dostęp do łazienki i jest nieznacznie większa. Łazienka ogólnodostępna zlokalizowana jest w pobliżu salonu, drugiej sypialni oraz wyjścia na taras, aby dostęp do niej był jak najwygodniejszy.
Często spotykany we wsi zagrodowy układ budynków, został odtworzony poprzez dodanie wiaty gospodarczej, jako dopełnienia budynku mieszkalnego. Uzyskane w ten sposób wnętrze, w którego centrum znajduje się częściowo osłonięty taras, nadaje przestrzeni za domem charakter podwórza i daje poczucie większej intymności.
Budynek przekryty jest dwuspadowym prostym dachem i oparty jest na planie prostokąta o wymiarach 7 x 13 m. Materiały elewacyjne nawiązują do stosowanych w regionie materiałów, używanych w budownictwie mieszkalnym tj. drewno, ceramika i tynk. Front budynku, usytuowany równolegle do drogi, ma charakter wiejskiej zabudowy, przy czym elewacje skierowane na podwórze kształtowane są w nowocześniejszej stylistyce.
W domu zostały zastosowane technologie ekologiczne ograniczające zużycie energii.
Realizacja domu planowana jest w 2021 roku.
Publikacje:
https://www.architekturaibiznes.pl/




